URBAN TIMBER INTERVENTION / BUILDING CONSTRUKTION
Hoch über den Dächern, über den Häusern und fernab der Enge der Straßen liegt eine zweite ungebaute Stadt. Hier sind Sonne, Licht, hängende Gärten und unbegrenzte Weite. Hier neuen Wohnraum zu schaffen, verhindert die Zersiedlung der Landschaft und stärkt die soziale und kulturelle Struktur der Stadt. Urban Timber Intervention ist ein Anfang diese zweite Stadt über den Dächern zu entwerfen. Holz als nachwachsender Baustoff ist eine Schlüsseltechnologie des nachhaltigen Bauens. Urban Timber Intervention sucht nach neuen Technologien und Strategien für urbanen Holzbau. Dabei soll neben technischen Innovationen auch nach neuen Ausdrucksformen und Gebäudetypologien für den Holzbau gesucht werden, die zu dem urbanen Kontext passen.
Dachaufstockung im urbanen Kontext Adresse - 4 Wohneinheiten mit jeweils ca. 100qm - Dachgarten (individuell oder gemeinschaftliche Nutzung) - Energetische Sanierung des Bestandes
english
High above the roofs of the city houses and away from the narrowness of the streets is a second unbuilt city. Here are the sun, light, hanging gardens and unlimited length. The project was about creating new housing, preventing urban sprawl and strengthen the social and cultural fabric of the city. Timber Urban intervention is beginning to design the second city on the roofs. Wood as a renewable building material is a key technology of sustainable design. Timber Urban intervention is seeking new technologies and strategies for urban timber. This is in addition to technical innovations are sought for the timber, even after the new building types and forms of expression that fit the urban context.
The Program was Roof increase in the urban context - 4 residential units, each with approximately 100 square meters - roof garden (individual or corporate use) - Retrofitting of the stock

Design Entwicklungs Diagramm. Architektur muss immer ein Konsens zwischen Kunst und Funktion schaffen. Aus der Fazit der Grundstücks Analyse: „Öffnungen scheinen auf den ersten Blick alles gleich, werden jedoch durch den Nutzer individualisiert“ entwickelte sich in unserem Projekt ein Modul und daraus per Addition ein Skulptur.
// Design development diagram. Architecture must always create a consensus between art and function. As a result of the plot analysis: "openings seem at first sight all the same, but are actually being personalized by the user" we developed our project by adding a module and froming a sculpture.

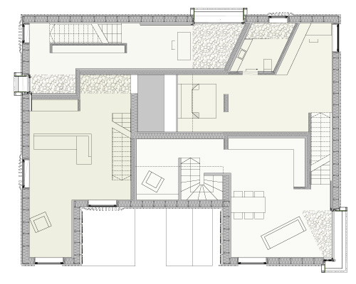
Grundriss
// Floorplan



Holzbau // Timber construction
Außenwand Aufbau
Lamellen LA 5 x 15cm
Konterlattung 4cm
Dampfbremse
Holzweichfaserplatte
TJI-Träger/ Dämmung 30 cm
Dampfsperre
OSB 1,6cm
Rigips Brandschutz F90 2 x 1,25cm

Konstruktionschnitt
// Construction section





Aus den Funktionen der Flächen entwickelte sich eine dreiteilige Öffnungshierarchie. Einschnitte im Baukörper, durch die Struktur der Skulptur entstanden, werden an einzigen Stellen zu Meditationsflächen, die das Draußen nach Innen holen und dem Nutzer individuell die Durchlässigkeit bestimmen lassen.
// From the functions of the surfaces was a three-piece opening hierarchydeveloped. Incisions in the building, caused by the structure of the sculpture, are becoming a meditation areas that bring the outdoors inside.

Blickfenster befinden sich an Orten, die für längeren Aufenthalt bestimmt sind und den Blick von und nach draußen möglich machen.
// View windows are located so that are designed for long stay area and make the view from outside to inside also possible.

An Verkehrsflächen und privaten Rückzugsbereichen öffnet sich die Holzlamellenfassade wird jedoch nicht durchbrochen und verhindert somit Einblicke von außen.
// In traffic areas and private retreat areas, the wooden slats facade is being broken throug openings, however, and thus prevents insights from the outside.
